Plantas de 97 e 100 m² / 2 ou 3 suítes

Residências Comfort

Espaços confortáveis, divididos em 2 andares

As Residências Comfort, são todas duplex e estão distribuídas nos pavimentos superiores do empreendimento.

 

Contam com amplos espaços de convívio social, ótimas suítes, banheiros e dormitórios.

 

Oferecem plantas com até 2 suítes no duplex superior e opção de uma terceira suíte no duplex inferior.

 

Conheça abaixo, as 4 opções de plantas e veja qual se encaixa melhor no seu dia a dia.

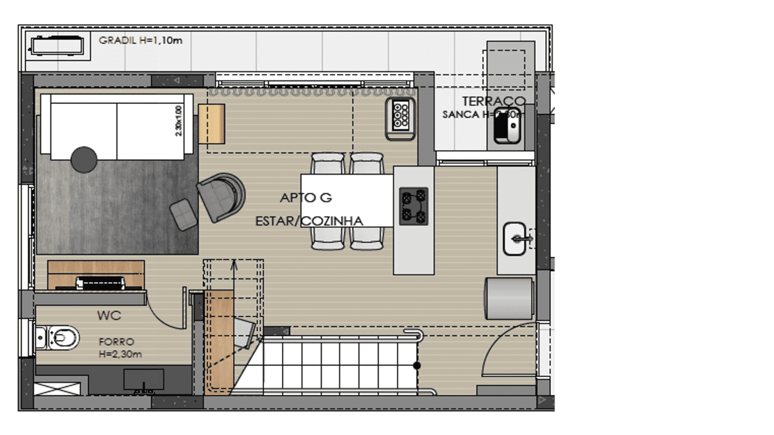
Residências Comfort final 4

 – Área privativa total de 97 m².

 

 – No duplex inferior conta com hall de acesso, cozinha, área de serviço, sala de estar, sala de jantar, varanda e lavabo, sendo que o layout permite que parte da sala e o lavabo sejam convertidos em uma suíte.

 

 – Já no duplex superior são 2 suítes, sendo uma com varanda exclusiva e closet, além de uma ampla varanda social.

Residências Comfort final 1

 – Área privativa total de 100 m².

 

 – No duplex inferior conta com hall de acesso, cozinha, área de serviço, sala de estar, sala de jantar, varanda e lavabo, sendo que o layout permite que parte da sala e o lavabo sejam convertidos em uma suíte.

 

 – Já no duplex superior são 2 suítes, sendo uma com varanda exclusiva e closet, além de uma ampla varanda social.

Entre em Contato









      fab fa-whatsapp fas fa-phone fas fa-envelope fab fa-instagram fab fa-facebook