Plantas de 83 a 133 m² / 2 ou 3 suítes

Residências Balcony

Sinta-se em uma casa

As Residências Balcony são todas duplex e ficam nos primeiros pavimentos do empreendimento.

 

Contam com amplas áreas sociais, grandes varandas e ótimas suítes, banheiros e dormitórios.

 

Oferecem plantas com até 2 suítes no duplex superior e algumas com opção de uma terceira suíte no duplex inferior.

 

Conheça abaixo, as 5 opções de plantas e veja qual se encaixa melhor no seu dia a dia.

Residência Balcony final 4

 – Área privativa total de 129 m².

 

 – No duplex inferior conta com hall de acesso, cozinha, área de serviço, sala de estar, sala de jantar e varanda além de 1 suíte, que pode ser revertida para ampliação da sala.

 

 – Já no duplex superior são 2 suítes, sendo uma com varanda exclusiva além de uma ampla varanda social.

Residência Balcony final 1

 – Área privativa total de 133 m².

 

 – No duplex inferior conta com hall de acesso, cozinha, área de serviço, sala de estar, sala de jantar e varanda, além de 1 suíte, que pode ser revertida para ampliação da sala.

 

 – Já no duplex superior são 2 suítes, sendo uma com closet, além de uma ampla varanda social.

Residência Balcony final 2

 – Área privativa total de 94 m².

 

 – No duplex inferior conta com hall de acesso, cozinha, área de serviço, sala de estar, sala de jantar e varanda.

 

 – Já no duplex superior são 2 suítes completas com closet, sendo 1 com varanda.

Residência Balcony final 3

 – Área privativa total de 83 m².

 

 – No duplex inferior conta com hall de acesso, cozinha, área de serviço, sala de estar, sala de jantar e varanda.

 

 – Já no duplex superior são 2 dormitórios com varanda, sendo uma suíte com closet.

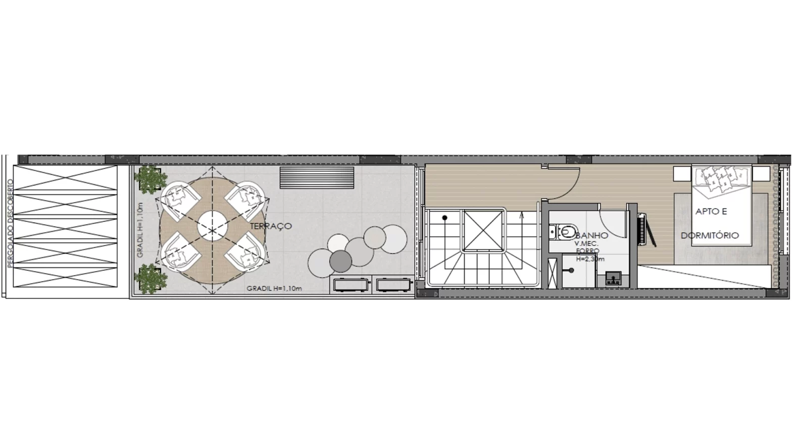
Residências Balcony final 5 e 6

 – Área privativa total de 102 e 100 m².

 

 – No duplex inferior conta com hall de acesso, cozinha, sala de estar e varanda além de 1 suíte.

 

 – Já no duplex superior tem 1 suíte e ampla varanda social.

Plantas final 5 e 6

Entre em Contato





    Navegação





      fab fa-whatsapp fas fa-phone fas fa-envelope fab fa-instagram fab fa-facebook